Modułowy/Kontenerowy obiekt biurowy – do demontażu i transpo
Płońsk Pokaż na mapie ›
Dodane: Poniedziałek, 03 Listopad, 2025 15:41
119 000 zł
Szczegóły ogłoszenia
- Kategoria: Biura i lokale / Sprzedaż
- Przeznaczenie:Biurowe
- Powierzchnia:70 m2
- Stan:Do zamieszkania
- Sprzedaż:Bez pośredników
- Cena: 119 000 zł
Opis oferty
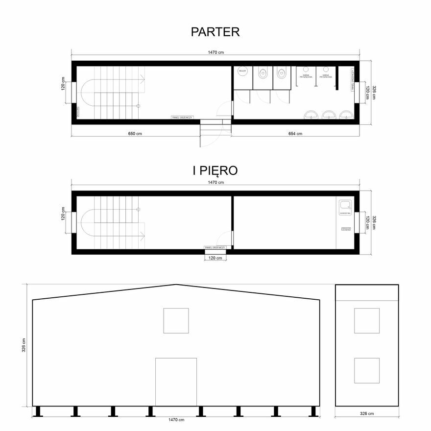
Na sprzedaż nowoczesny dwukondygnacyjny budynek modułowy, idealny jako biuro, zaplecze socjalne, szatnia, punkt obsługi lub zaplecze budowy. Obiekt w bardzo dobrym stanie technicznym – czysty, suchy, gotowy do demontażu i ponownego montażu w nowej lokalizacji.Specyfikacja:
• Powierzchnia zabudowy: ok. 70 m²
• Konstrukcja stalowa, elewacja z płyt warstwowych
• Dwie kondygnacje połączone klatką schodową z balustradami metalowymi
• Pomieszczenia biurowe i zaplecze socjalne na piętrze
• Pomieszczenie sanitarne z kabinami WC, umywalkami i miejscem na prysznice
• Okna PCV zapewniające dobre doświetlenie wnętrz
• Sufity podwieszane z oświetleniem LED
• Podłogi w płytkach gresowych
• Ogrzewanie elektryczne konwektorowe
• Instalacja elektryczna i wodno-kanalizacyjna sprawna
• Drzwi stalowe zewnętrzne i gładkie drzwi wewnętrzne
Układ pomieszczeń:
Parter:
• Przedsionek / wejście główne
• Pomieszczenie socjalne z zabudową kuchenną
• Toalety i natryski
• Klatka schodowa z balustradą metalową
Piętro:
• Dwa pomieszczenia
• Możliwość adaptacji pod dowolne przeznaczenie
Lokalizacja:
Obiekt obecnie znajduje się na terenie przemysłowym, z wygodnym dojazdem dla ciężarówek i HDS.
Idealny do wykorzystania jako:
• biuro firmy produkcyjnej lub budowlanej,
• zaplecze magazynowe,
• kontener socjalny,
• zaplecze budowy lub tymczasowy punkt obsługi klienta.
Sprawdź zainteresowanie tym ogłoszeniem
Wyświetlenia
Data dodania
Ostatnio widziany
Obserwujących
Wysłane zapytania
Odsłony telefonu
Powiadom o podobnych ogłoszeniach
Lokalizacja: Płońsk
Kategoria: Nieruchomości » Biura i lokale » Sprzedaż
Cena: od 101000 zł do 137000 zł Powierzchnia : od 60 m2 do 81 m2
Chcę otrzymywać powiadomienia o nowych ofertach
Bartłomiej
Konto firmowe
Na Lento.pl od 01 sie 2022
Strona użytkownika
- Wypromuj ogłoszenie
- Zgłoś naruszenie
- Drukuj ulotkę
- Edytuj/usuń ogłoszenie
- Udostępnij ogłoszenie
- Dodaj na Facebook





























